金沙娱乐 威尼斯人 太阳城

金沙娱乐- 威尼斯人- 太阳城 -澳门在线娱乐城首页聚焦:富元108君悦府售楼处电线小时电线最新房价→楼盘百科详情→售楼处更新发布@中心2026-02-20

发布时间:2026-02-21 12:39:04  浏览:

  金沙娱乐,金沙娱乐城官网,金沙娱乐城app,金沙娱乐城,金沙赌场网站,金沙博彩,金沙集团官网,金沙赌场网站,金沙官网,金沙app,澳门金沙娱乐城官网,威尼斯人,威尼斯人官网,威尼斯人博彩,威尼斯人app,威尼斯人平台,澳门威尼斯人官网,威尼斯人网址,威尼斯人赌场,太阳城,太阳城娱乐,太阳城app,太阳城app下载,太阳城集团,太阳城赌场,太阳城网络赌博平台,太阳城集团官网,太阳城网站注册,太阳城注册网址,澳门赌场app,澳门赌场官网,澳门赌场在线若有中介报价过低,请及时与售楼中心核对真假,避免上当!开发商热线【售楼处首页已认证】

  ◆开发商营销中心诚挚邀请,一键预约,尊享内部独家折扣!匠心独运的精品项目,恭候您的品鉴与选择。

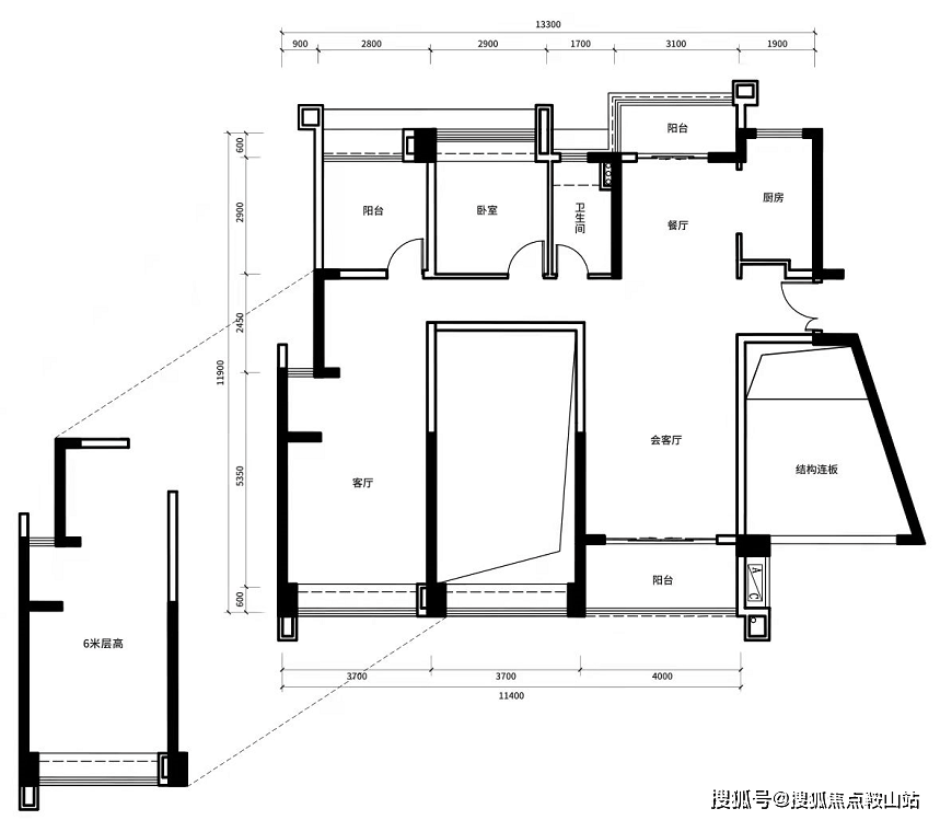
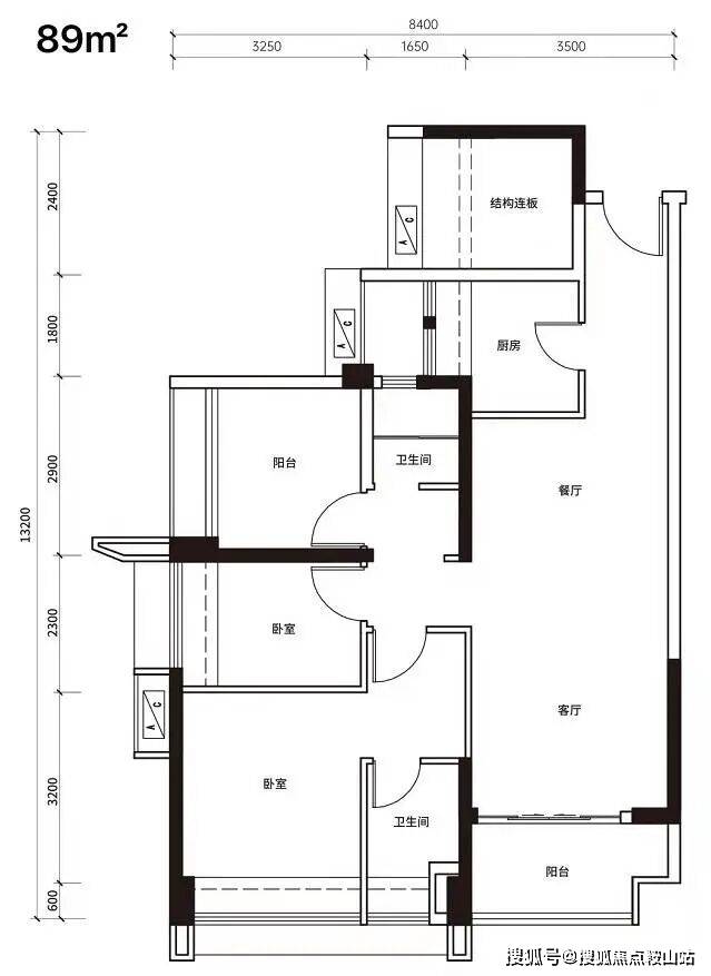
  中山富元108君悦府位于中山东区岐江新城(长江北路与濠江西路交汇处)中山历来就是粤港澳大湾区的C位城市,周边三大自贸区环绕,一桥之隔面向深圳前海,北承广州南沙,南接珠海横琴,可以说位置得天独厚。而且108君悦府更是稳居中山zui发达的板块:东区之上。这里是中山的市中心,也是交通的枢纽地,简直是黄金热土上的一座楼盘项目。换言之单单是区位条件来说,中山108君悦府完胜很多楼盘项目,超高的潜力值也由此奠定!,项目建筑面积:约120万㎡ 建面约:89㎡~130㎡

  中山108·君悦府位于岐江新城,东区总部经济区。东区总部经济区是岐江新城未来的发展核心。

  中山108项目总占地面积25.8万平方米(折合约387亩),总建筑面积约120万平方米,将建成一个含7幢150米以上超高层地标综合体,超甲级写字楼、国际五星级酒店、服务型公寓、高端江景豪宅、7万㎡花园式立体商业街区、文化中心等。

  项目位于中山北站、中山站两大TOD轨道交通之间,可快速接驳珠海、广州、深圳、上海、北京等一线城市以及香港、澳门。

  广州18号线南延线西线在项目旁规划设有岐江新城站。世纪大道可快速接驳马鞍岛,深中通道,直达深圳。起湾道快速工程沿过江隧道(规划中)可快速接驳三角快线。

  项目自带7万㎡花园式立体商业街区。5公里内石岐大信商圈、CocoCity商圈、宝龙城商圈(建设中)环绕。

  优质教育资源包括水云轩小学、实验小学、石岐一小,石岐中学等公立学校,项目对面即是K15阿丁莱国际双语学校(来自英国的知名学府),从幼儿园到高中,满足家长一站式教育需求。

  162亩滨江公园(项目配建)、7万方中央公园、253亩湾区体育公园、5万方小区园林。

  5万方小区园林,园林中央设1300方游泳池,架空层打造不同主题泛会所,满足各年龄段住户休闲需求。

  89方(2+2房2厅2卫2阳台),得房率100%,一家三口刚需上车东区福音。

  127/130方(3房+2房2厅3卫2阳台),得房率124%,6米挑高高拓灵动空间,双套间设计,4米宽景观阳台,满足三代同堂。

  144/146方(3房+2房2厅3卫2阳台),得房率124%,6米挑高高拓灵动空间,双套间设计,4.5米宽景观阳台,满足三代同堂。

  27方(3房+2房2厅3卫2阳台),得房率100%,平层设计6.8米大阳台。

  ✅Vip贵宾置业===欢迎来电预约尊享内部折扣===匠心钜制恭迎品鉴✽✽✽✽

  ✅1、文章图片来源于微信搜索或百度搜索引擎,我方非相关图片的原创作者,也不对相关图片及内容享有任何权利。✽✽✽✽

  ✅2、我方重申:富元108君悦府售楼处售楼中心电话::所有转载的文章、图片、音频、视频文件等资料知识产权归该权利人所有,但因技术能力有限无法查得知识产权来源而无法直接与版权人联系授权事宜。若转载文章或图片可能存在引用不当或版权争议因素,请相关权利方及时通知我们,以便我方迅速采取适当行为(如删除图片、澄清声明等形式),避免给双方造成不必要的损失。✽✽✽✽

  ✅3、本宣传资料对项目周边幼儿园、学校等教育资源的介绍旨在提供相关信息,并不意味着我方对就学安排作出承诺。教育资源的名称、办学性质、办学规模、学位设置、开学(班)时间、招生条件、收费标准及招生区域存在调整的可能,应以政府教育主管部门及办学方颁布的政策规定为准。✽✽✽✽

  ①深圳法拍市场再现天价房源,一湖景豪宅1.32亿成交,单价破20万/平方米;

  财联社2月20日讯(记者 李洁)深圳一豪宅在法拍活动中,以超20万元/平方米的单价成交。

  深圳市南山区人民法院2月19日在阿里司法拍卖网络平台进行公开拍卖活动,本次拍卖标的物为,位于深圳市南山区侨香路天鹅湖花园(一期)C栋一单元3201的房产。其起拍价为5523万元,共有19人报名,最终成交价高达1.32亿元,折合单价约20.53万元/平方米。

  按拍卖信息,该房源成交价相较于起拍价溢价0.77亿元,溢价率高达164%。

  “20.53万元的单价,在深圳楼市属于顶级水平。”中指院深圳分院高级分析师孙红梅告诉记者。对于该豪宅能以如此高溢价成交,其认为,原因首先在于此次成交的房产是2.5折起拍,起拍价仅5523万,对买家吸引力较大。

  其次,华侨城天鹅湖花园地理位置优越,占据华侨城核心地段,是传统豪宅片区。而此次拍卖房源的户型是643.25平方米的顶楼整层大平层,使用面积达680平方米,带泳池还能看湖景,而且小区整体房源数量有限,为大面积、高楼层、景观好的优质户型,具有稀缺性。

  拍卖公告显示,该套房屋为林某某2019年以1.23亿元的价格购得,房屋处置参考价为6904.13万元。据法拍平台信息,该套房产经过167轮竞价后,最终由自然人黄铂龙以1.32亿元的价格竞得。

  据悉,竞得该豪宅的黄铂龙与巨卓投资(深圳)有限公司的股东及董事同名。工商资料显示,巨卓投资股东之一为黄铂龙,其持有该公司50%股权,该公司主要以自有资金从事投资活动,业务范围包括信息咨询服务、社会经济咨询服务等。

  2024年7月10日,深圳南山区华侨城纯水岸(十一期)一栋建筑面积为463.91平方米的别墅在法拍活动中,以2.32亿元总价成交,折合单价约50万元/平方米,刷新了深圳法拍房的单价和总价纪录。

  此外,2024年4月3日,深圳沙河高尔夫别墅的一套法拍房以3906万起拍,吸引了14人报名,经过493轮竞拍,最终以1.6亿元的价格成交,溢价1.21亿元;2024年12月,深圳罗湖银湖公馆的一处毛坯别墅拍卖成功,产权建筑面积782平方米,评估价高达1.9亿元,最终以1.064亿元成交。

  “深圳土地资源较为有限,可开发为豪宅的土地更为稀缺,开发成本也较高,这导致深圳豪宅供应相对较少,加之当前楼市政策相对宽松,所以深圳豪宅市场表现出一定活跃度。”孙红梅表示。

  据中指研究院数据,2024年全年深圳法拍住宅累计成交1602套;2025年1月深圳法拍住宅共成交159套,位居广东法拍住宅市场成交榜首。

  ①广东省财政厅近日发布《2025年广东省政府专项债券(八期~九期)发行有关事项的通知》,2笔债券发行总额307亿元,募集资金拟用于回收广东省内的闲置存量土地项目;

  财联社2月24日讯(记者 李洁)在落地专项债收购闲置土地方面,广东或成为今年第一个“吃螃蟹”的地区。

  广东省财政厅近日发布了关于《2025年广东省政府专项债券(八期九期)发行有关事项的通知》,计划于2月28日为专项债券(八期九期)进行竞争性招标。

  据悉,本批专项债券(八期~九期)发行总额307.1859亿元,涉及2笔债券,其中,八期计划发行总额 114.04 亿元,九期计划发行总额 193.1459 亿元,均为新增专项债券,募集资金拟用于回收广东省内的闲置存量土地项目。

  “此次发行的307亿元额度专项债券,将全部用于回收闲置存量土地,广东省也是今年全国首个落地专项债券资金回收闲置存量土地的省份。”中指院政策研究总监陈文静告诉记者。

  据悉,2月18日,北京也曾发行一批地方政府专项债券,其中超100亿元规模的专项债券资金用于土地储备。

  “需要注意的是,北京专项债所对应的项目主要投向城中村改造、棚改项目、土地一级开发项目等,尚未涉及闲置存量土地的收购,因此,广东才是今年首个落地专项债券资金回收闲置存量土地的省份。”陈文静在接受记者采访时说。

  其进一步表示,此次广东省两笔专项债券发行成功后,随着资金逐步到位,将有助于加快对应项目收储工作的速度。

  医药龙头逆势“点火”!股价再创历史新高,北证牛股继续亢奋,这些方向也新高频现

  ①今日,百济神州逆势拉升,股价续刷历史新高,年内涨幅已超48%。其中本月上涨近25%。

  ②目前,百济神州融资余额已达10.38亿元,较去年年末时增长6.89亿元,增幅接近2倍。

  ③近20股今日创历史新高,北证A股占比四成,分行业看,机械设备、基础化工、汽车股数量较多。

  财联社2月28日讯(编辑 梓隆),今日(2月28日),医药龙头股百济神州逆势拉升,截至收盘,其全天收涨近5.5%,涨幅盘中一度冲高超9%。同时,其今日股价续刷历史新高,年内涨幅也已超48%,其中,本月以来共上涨近25%。

  昨日晚间,百济神州发布业绩快报,2024年营收同比增长56.2%,归母净利润则继续亏损,但规模较上年同期有所收窄。受此提振,百济神州今日股价再度拉涨,且于盘中创历史新高,截至今日(2月28日)收盘,其年涨幅已扩至48.06%,在市场一众千亿市值股中位居第二位,仅次于恒立液压(50.46%),并高于韦尔股份、三花智控、拓普集团、比亚迪等一众热股。

  从资金面来看,百济神州今年以来获融资客重点加仓,截至2月27日数据,其目前融资余额达10.38亿元,较去年年末时增长6.89亿元,增幅接近2倍。其中,百济神州的融资余额自2月中旬以来明显陡升,尤其是在2月20日,其单日融资净买额达2.13亿元,同时,在2月17日、2月18日、2月19日三个交易日,其也均获融资客单日超8000万元资金增持。

  注:百济神州近期融资余额变动情况(截至2月27日数据)返回搜狐,查看更多